Fortan-M Piroliz Tesisi

Fortan-M Piroliz Tesisi

Piroliz işlemi, atık maddeleri oksijensiz ortamda ayrışma işlemidir. Bu işlem sonucu açığa gaz, yağ ve karbon çıkar. Piroliz sistemi bir geri dönüşüm sistemidir. Dünyada halihazırda kullanılan fakat Türkiye'de henüz tam anlamı ile gelişememiş bir sistemdir.

Çevrenin gittikçe kirlendiği bir zamandayız. Öyle ki doğa kendi ekosisteminde kendisini temizleyebilecek kapasitede olmasına rağmen kirlilik bu kapasiteyi aşmış durumdadır. Geri dönüşüm işte bu alanda devreye giriyor ve çevreye zarar veren atıkları zehirli gaz salınımı yapmadan işe yarar maddelere dönüştürüyor.

Piroliz işlemi sonrasında elde edilen ürünler karbon içeriği bakımından zengin olan katı ürünler ve yoğunlaşabilen veya gaz ürün olarak alınan uçuculardır. Yoğuşan gaz, yağ olarak elde edilmektedir. Katı, sıvı ve gaz ürünlerin miktarları kullanılan atık hammaddesine ve uygulanan piroliz koşullarına göre farklılık gösterir. Yüksek ısıl değere sahip kaliteli yakıt karakterinde olan sıvı ürünler ikincil özelliklerine bağlı olarak alt fraksiyonlara ayrıştırılarak daha yüksek değerlere ulaştırılabilirler. Gaz ürün hidrokarbonlardan oluşur ve yüksek ısıl değere sahiptir. Katı ürünler ise karbonca zengindirler ve sanayide veya tarımda farklı kullanım alanları vardır.

Piroliz Tesisi ile Geri Dönüşüm Yapılabilecek Atıklar

  • Belediye atıkları
  • Evsel atıklar
  • Kauçuk içerikli ve plastik atıklar
  • Yıpranmış oto lastik atıkları
  • Ahşap işleme ve orman atıkları
  • Petrolden kirlenmiş toprak atıkları
  • Petrol atıkları
  • Tıbbi atıklar

Tüm atıklar ayrıştırılmadan piroliz metotla işlenir.

Teknik Özellikleri

No Parametre Birim Değer
1 Kapasite m³/gün 72/50 ton
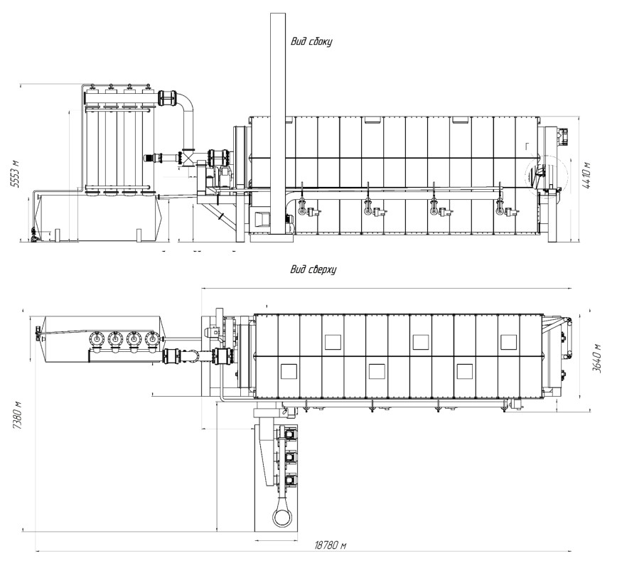
2 Genel ölçüleri m 18,780 x 7,830 x 5,553
3 Yükleme kazan hacmi 36
4 Yükleme kazan çapı mm 1200
5 Güç tüketimi kW 17

Detaylı Parça Listesi

Adı Birim Adet
Ön çerçeve Adet 1
Arka çerçeve Adet 1
Sürücü Adet 1
Isıtma kazanın alt kısmı Adet 2
Isıtma kazanın orta bölümü Adet 2
Isıtma kazanın üst kısmı Adet 2
Damıtma haznesi Adet 1
Kondense-soğutucu bölümü Adet 1
Ayırıcı-seperatör Adet 1
Boşaltma cihazı Adet 1
Duman baca Adet 2
Duman emme birimi Adet 1
Sıvı yakıt brülörü Adet 4
Gaz brülörü Adet 4
Boru takımı Adet Komplekt
Kontrol pano Adet 1

Ekipmanlarımızı satın alırken size tam kapsamlı bir hizmet sunuyoruz:

2 yıl garanti Kurulum denetimi (şef-montaj)
Çalıştırma Personel eğitimi
Garanti ve garanti sonrası servis Gerekli tüm teknik belgeler
Tam teknik destek, istişareleri Ekipman teslim etme organizasyonu

Ürün Çıkışı

Fortan-M Ünitesinde Farklı Malzemelerin İşlenmesi

EKA Ayrıştırılmamış EKA Ayrıştırılmış
Piroliz sıvı yakıt: %15-20
Gaz: %8-10
Teknik karbon: %30-35
Kalan: su
Piroliz sıvı yakıt: %48
Gaz: %13
Teknik karbon: %17
Metal: %0,6
Kalan: su
Yıpranmış Araç Lastikleri Akaryakıt Atıkları
Sıvı yakıt: %35-45
Gaz: %10-12
Teknik karbon: %8-10
Metal: %40
Sıvı yakıt: %85-90
Gaz: %5-7
Kömür: %5-7
Plastik Atıklar Tıbbi Atıklar
Sıvı yakıt: %60-80
Gaz: %10
Karbon: %5-30
Sıvı yakıt: %65-75
Gaz: %10-30
Karbon: %6-15
Petrol Çamuru Atık Yağlar
Sıvı yakıt: %75-80
Gaz: %10-15
Kömür: %10-15
Sıvı yakıt: %85-90
Gaz: %5-7
Kömür: %5-7
Kömür Ahşap Atık
Sıvı yakıt: %14
Gaz: %12
Kömür: %64
Su: %10
Sıvı yakıt: %4-5
Gaz: %18-24
Kömür: %20-25
Kalan: su

* Ürün verimi atıkların bileşimine bağlıdır

Fortan piroliz tesisi, ısıya dayanıklı paslanmaz çelikten imal edilmiş iki taşıyıcı ile donatılmıştır. Piroliz modülü seramik elyaf ve refrakter betona dayanarak yüksek sıcaklıkta ısı yalıtımı ile kaplanmıştır. Çalışma sırasında modülün dış duvarının sıcaklığı bakım personeli için güvenlidir.

Retort kapağı, imbik içindeki boşluğun tamamen sızdırmaz olmasını sağlayan ve duman olasılığını ortadan kaldıran özel bir tasarım kapamasıyla üretilmiştir. Fortan tesisleri, tesis işletmesinin düzenlenmesi ve ayarlanması için proses kontrol ve kontrol paneli için gerekli cihazlarla donatılmıştır. Patlama korumalı valf ve gaz acil durum giderme sistemleri, bir arıza durumunda çalışanların ve ekipmanın güvenliğini sağlar.

Fortan tesisleri mobil kullanım için tasarlanmıştır: herhangi bir ulaşım aracıyla nakliye için standart ölçülere sahiptir, tüm yapı içerisinde flanşlı bağlantılar var, böylece montaj sökme işlemi en az zaman alır, nakliye için standı da sahiptir. Yerleşimleri için konum uzun hazırlık ve yapım çalışmaları gerektirmez.

Fortan tesisleri çevre dostudur, güvenliklidir ve sınırsız imkanlardır!

İşlenmiş Nihai Ürünlerin Kullanım Alanları

Burada işlenmiş nihai ürünlerin kullanım alanları detaylandırılabilir.

Teslimat Bilgisi

Teslimat bilgilerini burada paylaşabilirsiniz.